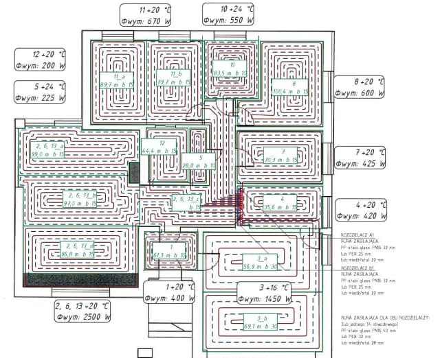
Jak zaprojektować ogrzewanie podłogowe krok po kroku: kompletny poradnik
Dowiedz się jak zaprojektować ogrzewanie podłogowe samodzielnie. Poznaj najważniejsze obliczenia, zasady rozstawu rur i dobór materiałów. Sprawdzona wiedza techniczna w jednym miejscu.